Großmodernisierung am Hellweg – ein Jahrzehntprojekt

In neun Bauabschnitten von jeweils ca. 12-14 Monaten Dauer wird die denkmalgeschützte Siedlung Block für Block den Anforderungen an modernen Wohnraum angepasst. 200 von 280 Wohnungen werden öffentlich gefördert sein.

In der Zeit der Weimarer Republik zwischen 1929 und 1931 errichtet, gilt die Siedlung am Hellweg als Zeugnis des „Neuen Bauens“. Entstanden ist er gesamte Straßenzug aufgrund der dramatischen Wohnungsnot nach dem ersten Weltkrieg.

Die Wohnungen der Flachdachgebäude wurden bereits in den 1970er Jahren im Rahmen einer ersten Modernisierung mit Bädern, Zentralheizung und isolierverglasten Kunststofffenstern ausgestattet.

Die nun bald 100 Jahre alten Gebäude stehen unter Denkmalschutz. Bereits seit 2017 hat die SWD an der Dieselstraße 80 bis 86 mit der zeitgemäßen Modernisierung begonnen. Diese Häuser sind bereits fertiggestellt und wieder bezogen.

Im Verlauf des Jahrzehnts werden nun in neun Bauabschnitten nach und nach alle Häuser entlang des Hellwegs modernisiert. Um die umfangreichen Arbeiten durchführen zu können, müssen die Häuser innerhalb eines Bauabschnitts leergezogen werden.

Was bedeutet das für die Mieterinnen und Mieter der SWD-Häuser am Hellweg?

Die SWD ist sich als städtisches Wohnungsunternehmen natürlich ihrer sozialen Verantwortung bewusst. Allen Mieterinnen und Mietern der betroffenen Wohnungen werden adäquate Ersatzwohnungen angeboten sowie Hilfe beim Umzug und sonstigen Veränderungen als „Rundum-Sorglospaket“ gewährt.

Die Modernisierungsmaßnahmen im Überblick:

    • Instandsetzung der Fassaden im Sichtmauerwerk und neuer Anstrich der Putzbereiche
    • Neubau von Eingangsvorbauten als besserer Wetterschutz
    • Anbau von Balkonen inklusive Schaffung der Zugänge durch große Balkontüren
    • Erneuerung aller Fenster und der Fensterbänke
    • Erneuerung der Dachabdichtungen und der Dachentwässerung
    • Grundrissveränderungen für modernes Wohnen
    • Einbau einer Fernwärme-Zentralheizung mit Warmwasserbereitung
    • Einbau neuer Bäder und WCs mit neuen Installationen, natürlich barrierefrei
    • Einbau einer kontrollierten Wohnungslüftung nach aktuellem Standard
    • Einbau neuer Elektroinstallationen und -einrichtungen
    • Ausbau der Holzfußböden und Einbau schalldämmender Estriche mit Oberbelägen
    • Einbau neuer Wohnungseingangstüren und Innentüren
    • Renovierung aller Wand- und Deckenoberflächen
    • Instandsetzung der Keller mit Wärmedämmung der Decke zum Erdgeschoss
    • Wärmedämmung der Decke zum nicht ausgebauten Dachraum

 

280 Wohnungen, 14.800 qm Wohnraum

Planung und Entwicklung von Bauabschnitten über einen Zeitraum von mehreren Jahren darstellt, beginnend mit 2023 und endend in 2034.
Lageplan, der die Aufteilung verschiedener Bauphasen an einer bestimmten Adresse zeigt, farblich markiert zur besseren Unterscheidung.

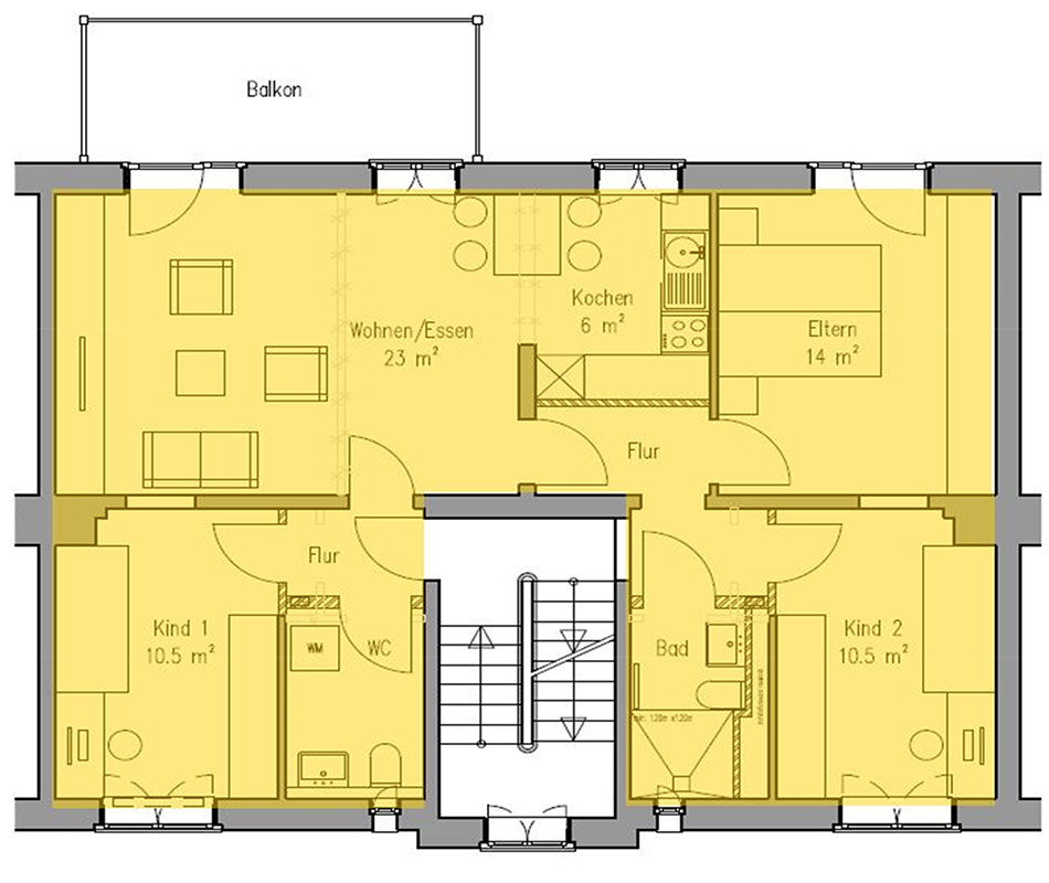
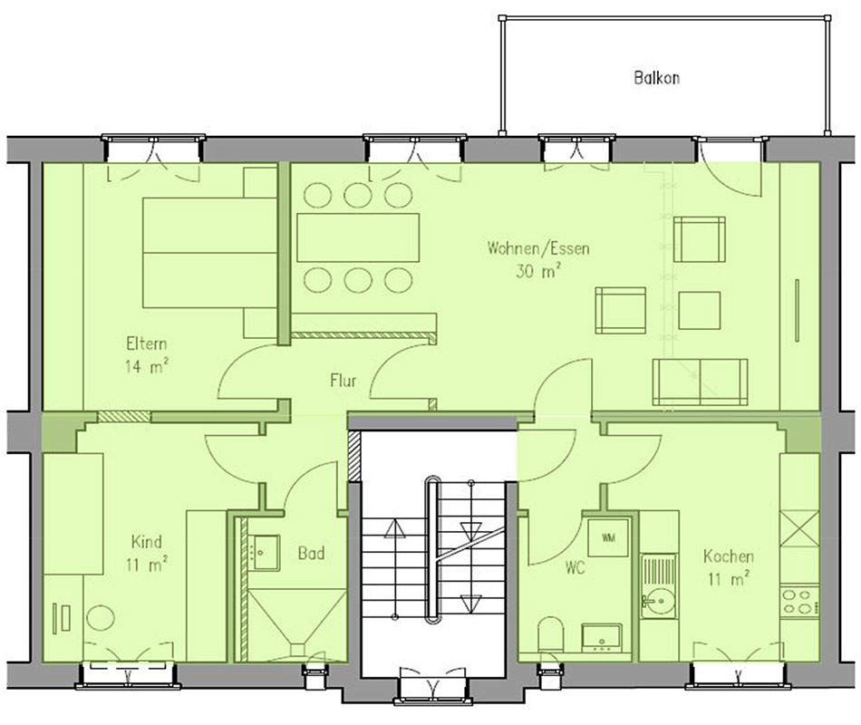
Verschaffen Sie sich einen Eindruck von den neuen Wohnungen

Einen ersten Eindruck, wie die Wohnungen am Hellweg zukünftig aussehen werden, können Sie sich schon jetzt verschaffen.

Da die Gesamtbaumaßnahme Hellweg für viele Mieterinnen und Mieter der SWD von Interesse ist und zahlreiche Menschen von den Umsetzungen direkt betroffen sind, hat man sich entschlossen, Musterwohnungen mit unterschiedlichen Grundrissen vorzubereiten.

Wir haben die beiden zurzeit zur Verfügung stehenden Wohnungsgrundrisse für Sie gefilmt, damit Sie sich auch online einen ersten Eindruck zur Inspiration verschaffen können.

2 Zi. Wohnung mit ca. 49 qm

2 Zi. Wohnung mit ca. 64 qm

Die Filme sind von Sebastian Thesing (SWD) erstellt.